In einer zweiteiligen Doku präsentiert der britische TV-Sender Channel 4 am Samstag angeblich neue Erkenntnisse über Adolf Hitler. Die stammen aus ihm selbst. Was die DNA über den Diktator verrät, welche Rolle ein blutiger Stofffetzen spielte und welche ein Mikropenis.

Was sich sagen lässt: Das Gettysburg Museum of History in Pennsylvania ist sehr stolz auf seine Ausstellungsstücke aus dem Zweiten Weltkrieg. Gezeigt werden etwa das persönliche Rasiermesser von General George S. Patton, Adolf Hitlers Fenstergriffkurbel aus dem Kehlsteinhaus auf dem Obersalzberg und ein Fußhocker aus Hitlers sogenanntem Führerbunker in Berlin.
Ein Schaustück erlangte nun aber überregionale Bedeutung. Es handelt sich um einen Teil der Couch aus dem sogenannten Führerbunker, der Stofffetzen soll mit dem Blut von Hitler getränkt sein. Die Geschichte dahinter ist abenteuerlich, jedenfalls abenteuerlich genug, um daraus eine zweiteilige Doku zu gestalten.
Sie beschäftigt sich vorrangig mit der Analyse des Blutes auf dem Stofffetzen, vor allem aber auch mit der Vorgeschichte des Fundes. Man muss nicht der Generation der Hitler-Tagebücher aus dem Stern angehören, um etwas Skepsis walten zu lassen. Was ist echt, was Märchen, was lässt sich belegen, was gehört in den Bereich der Spekulation? Das muss man über Hitlers DNA wissen:
Was hat es mit dem Stofffetzen auf sich?
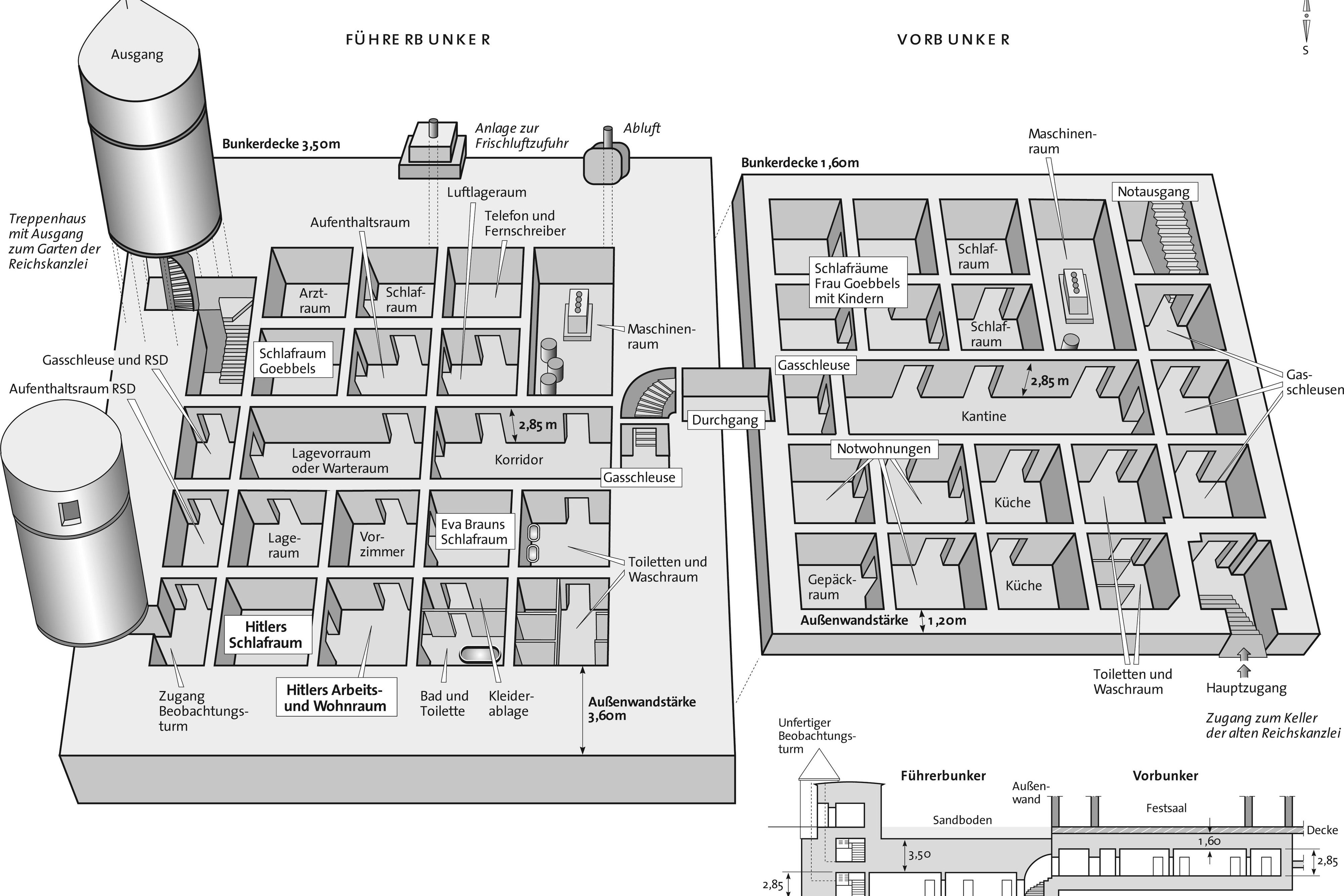
Den gibt es, das lässt sich mit einem Foto belegen. Es zeigt drei Soldaten im sogenannten Führerbunker. Einer hockt mit einer Kerze in der Hand da und leuchtet damit den Boden und ein Sofa aus. Auf diesem Sofa hatte sich der Nazi-Schlächter suizidiert.
Wie kam das Bild zustande?
Es wurde im Juli 1945 aufgenommen. In der unterirdischen Bunkeranlage hatten Hitler und seine Frau Eva Braun am Nachmittag des 30. April 1945 gegen 15.30 Uhr Suizid verübt. Das löste eine Welle aus. Am Tag darauf ermordet Magda Goebbels im "Führerbunker" ihre sechs Kinder, danach tötete sich unter anderem Propagandaminister Joseph Goebbels.
Was weiß man über Rosengren?
Er stammte aus Buffalo, New York, war Anwalt, Universitätsprofessor und Offizier der US-Armee. 1945 war er 43 Jahre alt und Presseoffiziere von General Dwight D. Eisenhower.
Warum ist Rosengren relevant?
Weil er ein etwa handtellergroßes Stück des blutbefleckten Tuches aus dem Sofa schnitt und es mit nach Hause nahm. 80 Jahre später erlangt der Fetzen nun weltweite Bedeutung.
Wie das?
Es ist unklar, wie das Gettysburg Museum of History in den Besitz des Stoffes kam. Laut Rosengrens Enkel lag der Fetzen lange Zeit in einem Safe. Britische TV-Produzenten stießen auf das Exponat, als sie auf der Suche nach DNA-Material von Hitler für eine Doku waren. Das Museum stellte das Stoffstück der Forschung zur Verfügung. Ziel: Die Sequenzierung des Genoms von Hitler.
Was war das zweite Ziel?
Die Herstellung einer TV-Sendung. Auftraggeber war der britische Sender Channel 4, produziert wurde sie von Blink Films, einem Studio aus London. Die zweiteilige Doku trägt den Titel "Hitler's DNA: Blueprint Of A Dictator", also Bauplan eines Diktators. Beide Teile zusammen sind rund 90 Minuten lang.

Wann wird die Doku gezeigt?
Am Samstag, 15. November, auf Channel 4 ab 21 Uhr. Da das Vorhaben aber bereits auf TV-Messen zur Lizensierung angeboten wurde, ist damit zu rechnen, dass die Doku bald auch im deutschsprachigen Raum zu sehen sein wird.
Wann wurden die Blutproben aus dem Stoffteil gezogen?
Bereits 2019. Es dauerte also sechs Jahre, ehe daraus ein TV-Ereignis wurde.
Wie stellte man fest, dass es sich um Hitlers Blut handelte?
Das war in der Tat kein trivialer Job. Die Produzenten versuchten zunächst über noch lebende Verwandte von Hitler in Österreich und in den USA, an eine Vergleichsprobe zu kommen, berichtet der Guardian. Aber keiner der Kontaktierten war dazu bereit, niemand wollte medial in die Öffentlichkeit treten.
Wie klappte es dann?
Nun wird es etwas diffus. Ein belgischer Journalist war 2008 der Spur nachgegangen, Hitler habe im Ersten Weltkrieg einen unehelichen Sohn gezeugt (die These wurde widerlegt). Es gelang ihm, sich einen Abstrich eines männlichen Verwandten von Hitler zu besorgen, auf welchem Weg, legal oder illegal, wird nicht näher erläutert.
Gab es jetzt einen Treffer?
Laut der in britischen Medien vorgestellten Ergebnisse stimmten die Marker "nahezu perfekt" überein. Wieder sei zur Vorsicht geraten. Es gibt für die Übereinstimmung keine unabhängige Bestätigung, die Ergebnisse wurden auch noch nicht wissenschaftlich publiziert.

Wer hat überhaupt untersucht?
Channel 4 hat sich ein hochkarätiges Team gesucht. An der Spitze standen Alex J Kay, Historiker an der Universität Potsdam, und die anerkannte kanadisch-britische Genetikerin Turi King. Sie leitete 2012 das Forscherteam, das sich mit der DNA-Identifizierung der Überreste Richards III. befasste. Sie waren unter einem Parkplatz in Leicester gefunden worden.
War sie gleich Feuer und Flamme?
Mitnichten, einige Labore lehnten auch eine Mitarbeit an dem Projekt ab. "Ich habe lange darüber nachgedacht“, sagte King der Times. "Aber es wird irgendwann geschehen, und wir wollten sicherstellen, dass es äußerst sorgfältig und gewissenhaft abläuft. Außerdem würde ihn eine Nichtbeachtung auf ein Podest stellen."
Was bedeutet "gewissenhaft"?
King ließ das Blut von drei unabhängigen Laboren untersuchen , alle kamen zum selben Ergebnis.
Wie beurteilt King die Analyse von Hitlers DNA?
"Wenn er sich seine eigenen genetischen Ergebnisse ansehen würde, hätte er sich mit ziemlicher Sicherheit selbst in die Gaskammern geschickt."
Was wurde alles untersucht?
Es ging darum, ein eventuelles Krankheitsbild von Hitler zu erstellen. Außerdem sollte einigen Mythen auf den Grund gegangen werden. Etwa:

Hatte Hitler jüdische Vorfahren?
Das Gerücht existiert seit Jahrzehnten, auch in politischen Kreisen. Hitler soll einen jüdischen Großvater gehabt haben. Stimmt nicht, ergab die DNA-Analyse. Sie belegt seine österreichisch-deutsche Abstammung.
Hatte Hitler eine sexuelle Störung?
Er soll das Kallmann-Syndrom gehabt haben, einer genetischen Störung, die eine normale Entwicklung der Pubertät und der Geschlechtsorgane beeinträchtigt. Bekannt war, dass Hitler rechtsseitig einen Hodenhochstand hatte, die Hoden sind im Leistenkanal oder im Bauchraum stecken geblieben. Das kommt häufig vor und wird sonst operativ saniert.
Welche Folgen kann die genetische Störung haben?
Sie kann den Testosteronspiegel beeinflussen. Mit einer Wahrscheinlichkeit von 10 Prozent hatte Hitler einen Mikropenis. Das passt in seine biographische Erzählung, wonach er im Ersten Weltkrieg Hitler wegen der Größe seiner Genitalien schikaniert worden sein soll.
Lässt das weitere Schlüsse zu, etwa auf sein Verhalten?
Spätestens ab da betritt die Analyse sehr dünnes Eis. Die Erkenntnisse, warnen viele, dürfen jetzt nicht als eine Art Rechtfertigung herangezogen werden. Auch die beigezogene Wissenschafterin Turi King warnt: "Die Genetik kann sein Handeln in keiner Weise entschuldigen."
Passiert das trotzdem?
Natürlich. Hitlers sexuelle Störung soll sein seltsames Verhalten Frauen gegenüber erklären, seine Schwierigkeiten, eine sexuelle Beziehung einzugehen und sein kriegerisches Handeln deuten. Selbst Alex J Kay, Historiker der Doku, sagt: "Dies würde dazu beitragen, Hitlers höchst ungewöhnliche und fast vollständige Hingabe an die Politik in seinem Leben zu erklären, die jegliches Privatleben ausschloss."

Litt Hitler an Schizophrenie?
Dafür liefert die DNA-Analyse kein eindeutiges Ergebnis. Beim Kallmann-Syndrom muss nur das Fehlen eines einzigen Gens nachgewiesen werden, bei neurologischen Störungen und psychischen Erkrankungen ist das Unterfangen weitaus komplexer.
Also nein?
Das Forschungsteam konnte nur eine Wahrscheinlichkeit ermitteln. Das funktioniert über sogenannte "polygene Scores", Tausende von Proben. Demnach gehörte Hitler hinsichtlich der Wahrscheinlichkeit, an Autismus, Schizophrenie und bipolarer Störung zu erkranken, zu den obersten Prozent der Bevölkerung. Trotzdem: Vorsicht!
Warum?
Viele Wissenschafterinnen und Wissenschafter warnen vor einer Überinterpretation. Die Doku geht mit Fakten mitunter sehr salopp um, wie der Guardian erklärt. Beispiel: Ein Genetiker nennt Hitlers Risikoprofil für ADHS "überdurchschnittlich", wenige Sekunden später wird daraus eine "Veranlagung zu ADHS", dann "Menschen mit ADHS, wie Hitler."
Führt zur grundsätzlichen Frage?
Worin liegt der Mehrwert der Erkenntnisse?